Ombygning 1: Ny grundplan gav masser af lys og udsigt
Klik for større billeder og swipe for flere billeder
Fakta om ombygningen
- Arkitekt: Torben Kjær, SPOT Architecture.
- Hvad: Typehus fra 1971. Ombygning indendørs med bedre rumfordeling og udnyttelse af udsigt og lys.
- Hvem: Familie med to mindre børn.
- Hvor: Horsens.
- Økonomi: Ca. 650.000 kr. Skitseprojekt fra arkitekt: 25.000 kr.
Formål med ombygningen:
- Pladsen i huset føltes trang, og planløsningen udnyttede ikke den smukke udsigt. Familien ville gerne udskifte det utidssvarende og dårligt placerede køkken, men de havde svært ved at se, hvordan de kunne skabe mere sammenhæng i boligen og mere lysgennemstrømning uden at ende med en balsal af en stue. Desuden ønskede de hjælp til møblering af de meget store opholdsrum.
Hvad er grundtanken i ombygningen?
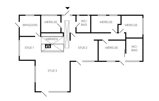
- Løsningen blev at vælte en væg og rykke køkkenet ud mod midten af opholdsrummet for at få bedre adgang til dagslys og udsigt til skoven for enden af grunden. Derved er køkkenet gjort til boligens centrale rum, hvor familien opholder sig mest, og det hænger sammen med stuen, der ikke længere føles for stor. Køkken-alrummet disponerer nu over 54 m2 mod før 32 m2. Selve stuen er derimod gjort mindre – fra 55 m2 til 24 m2.
- Som bonus blev der i tilknytning til forældresoveværelset plads til et walk-in-closet, hvor det oprindelige køkken var placeret. Stuen fik vinduespartier fra loft til gulv i gavlen, hvilket giver et bedre samspil med skov og have udenfor.
Hvad var de største udfordringer?
- Opholdsarealet i huset var rigeligt stort, men ikke hensigtsmæssigt disponeret. Stuen føltes for stor og køkken-alrummet var mørkt og afskåret fra stuen af en lang væg. Udfordringen var således at optimere boligkvadratmeterne, og skabe bedre sammenhæng og dagslysforhold inden for de givne ydervægge uden at ændre for meget i konstruktioner og facade.
Hvad er vigtigt, når du renoverer typehuse fra 1960’erne og 1970’erne?
- Typehuse fra den tid er ikke tegnet specifikt til stedet, så ofte ligger de ikke optimalt på grunden i forhold til adgang, udsigt og sol. Til gengæld ligger de tit tæt på byen, der er vokset ud over det, der engang var yderområdet.
- Byggematerialerne er ofte enkle og gedigne, og planløsningerne nemme at gå til, hvis der skal ændres, rokeres om eller bygges til. Men som boligejer kan man kan let stirre sig blind og ikke se de muligheder, der er for en mere nutidig bolig. Derfor kan det være en god idé at indhente noget faglig sparring.
- Periodens huse mangler desuden energimæssig opdatering, da vores isoleringsstandarder har ændret sig meget. Men det kan tænkes ind sammen med moderniseringen og ombygningen, hvilket er win-win for ejeren.
Ombygning 2: Farvel til parcelhusstilen
Klik for større billeder og swipe for flere billeder
Fakta om ombygningen
- Arkitekt: Jan Christoffersen, Christoffersen Arkitekter
- Hvad: Typehus fra Hosby Huse fra 1973 på 190 m2, der er blevet totalt forvandlet både ude og inde, men ikke udvidet.
- Hvem: Familie med tre børn. Parret købte huset, mens de ventede deres tredje barn.
- Hvor: Spinkebjerg øst for Herning.
- Økonomi: Hele projektet har kostet 1,5 millioner kr. inklusive rådgivning.
Formål med ombygningen:
- Familien var ikke vilde med parcelhusstilen, men udsigten og beliggenheden var i top, og de ville gerne bo i netop dette område. Løsningen blev en totalforvandling af det indre suppleret med en opstramning af det ydre, der stadig har de gule sten i behold.
Hvad er grundtanken i ombygningen?
- Primært at få tilpasset huset planmæssigt og materialemæssigt til familien. De ønskede køkken-alrum og stue ud i ét og værelser til alle tre børn.
- Ofte skal man træffe valget, om køkken-alrummet skal være ét eller to rum, og familien ville gerne have en åben planløsning med køkkenet som en central del i et miljø, der også rummer arbejdspladser m.m., så man kan lave hvert sit, men sammen.
Hvad var de største udfordringer?
- At få planløsningen ændret og tilpasset ejernes krav og samtidig gøre huset tidssvarende materiale- og isoleringsmæssigt.
- Vi gennemgik hele huset og isolerede krybekælder, ydervægge, loftrum og isatte nye, store vinduer. For at opdatere husets udtryk valgte vi at skære udhænget af og montere facadebeklædning i zink samt udvendige tagrender også i zink.
- Taget blev belagt med tagpap med trekantlister, hvilket giver det nogle linjer og et levende udtryk. Samtidig passer det godt sammen med zinkbeklædningen på facade og gavle. Vi ville også skabe mere udsyn til og lysindfald fra haven, hvilket vi gjorde med vinduer til gulv og skydedør ud til terrassen.
Hvad er vigtigt, når du renoverer typehuse fra 1960’erne og 1970’erne?
- Få lavet en grundig helhedsplan for såvel funktionalitet som byggeteknik. Mange gamle huse vender forkert på grunden, og de skal vendes og hænge sammen med haven og fx en overdækket terrasse, der forlænger sæsonen. Dernæst er en massiv energirenovering vigtig efter Bygningsreglementets nyeste krav til energiforbrug, isolering m.m., så indeklimakomfort og varmeoptimering er i top.
Ombygning 3: Meget mere plads og energimærke fra G til A+
Klik for større billeder og swipe for flere billeder
Fakta om ombygningen
- Arkitekt: Marie Mølgaard Vinther, Bjerg Arkitektur.
- Hvad: Tilbygning og energirenovering af klassisk parcelhus fra 1968.
- Plads: Før: 108 m2. Nu: 206 m2 + 70 m2 garage.
- Hvem: Ungt par, førstegangskøbere, indtil videre uden børn – dog med ønske om børn og derfor også ønske om ekstra kvadratmeter til fremtiden.
- Hvor: Hjørring.
- Økonomi: Samlet projektpris var 2,4 millioner kr. Skitse og myndighedsprojekt fra arkitekter: 75.000 kr.
Formål med ombygningen:
- Parret havde købt huset velvidende, at de ville i gang med en større renovering og tilbygning. De ønskede mere plads og en mere åben planløsning samt en generel energimæssig opdatering af huset til passivhus-standard. Selvom de endnu ikke har børn, skulle udvidelsen rumme to store børneværelser. I det hele taget efterlyste de et bedre flow i boligen.
Hvad er grundtanken i ombygningen?
- Først ville parret bygge de to værelser ud mod havesiden mod syd, for her var der god plads. Men jeg rådede dem til at vende det hele på hovedet og placere værelserne mod nord og ud mod vejen og i stedet bygge en ny stue med store, åbne vinduespartier ud mod haven. Det ville give dem et stort åbent opholdsområde med godt dagslys og direkte adgang til haven. Projektet endte også med, at der blev bygget en stor garage, der er bygget på den eksisterende villa.
- Arkitektonisk er der skabt en bevidst kontrast mellem den oprindelige del af huset og de nye tilbygninger. Det gamle gulstenshus er pudset hvidt og står i kontrast til de antracitgrå fibercementplader på tilbygningerne, der er lidt lavere.
- Det grafiske udtryk på tilbygningerne har vi finjusteret med et meget bevidst valgt mønster, der blødes op af flader af træ ved enkelte vinduespartier, der går igen på det oprindelige hus, så der skabes sammenhæng mellem nyt og gammelt.
Hvad var de største udfordringer?
- Det er vigtigt at gribe en så omfattende ombygning og energirenovering korrekt an, så æstetik, funktionalitet og selve energirenoveringsdelen går hånd i hånd. Undervejs måtte vi eksempelvis justere lidt og isolere mindre i én gavl pga. afstand til skel og derfor energioptimere i en anden del af huset. Også andre praktikaliteter var nødvendige for at opnå funktionen af et passivhus, der giver bygherren en optimal komfort.
Hvad er vigtigt, når du renoverer typehuse fra 1960’erne og 1970’erne?
- Vi har altid fokus på det enkelte projekt, for det er meget vigtigt at tage udgangspunkt i den individuelle kundes ønsker og behov og det konkrete hus’ kvaliteter såsom arkitektur, udsigt, placering på grunden m.m.
Når vi taler opdatering til passivhus, anvender vi energiberegningsværktøjer og totaløkonomiske beregningsmodeller, der viser, hvilke tiltag der er mest rentable, og hvilken energibesparelse der kan opnås, så den kan indgå som økonomisk forrentning i lånet til renoveringen. Og vælter fx fire ekstra ovenlysvinduer energiregnskabet, så skal den energibesparelse findes et andet sted, uden at det påvirker husets arkitektoniske kvalitet.

















