
Da familien købte grunden var den fyldt med høje, smukke træer, præcis som de havde drømt om. Desværre blev de nødt til at fælde dem, da huset skulle bygges, så materialer kunne køres ind, og håndværkerne havde plads til at arbejde.
Boligen kort
- Hvem bor her: Marie, Jacob samt døtrene Asta, Karoline og Ida-Marie på henholdsvis 9, 6 og 3 år.
- Hvad: Nybygget hus fra 2017 i ét plan.
- Hvor mange m2: 175 m2.
Der er hverken brug for at gå sidelæns, passe på, at man ikke falder over en masse sko, eller møve sig uden om en stor pukkel af overtøj på væggen, når man træder ind i den nybyggede villa i udkanten af København. Og her bor endda en familie på fem.
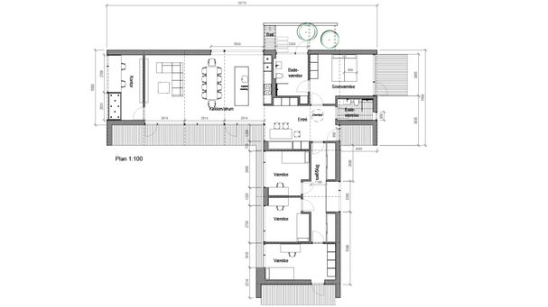
Entréen er med sine 17,2 kvadratmeter nemlig markant større end de flestes. Og stik mod almindelig logik er de ekstra kvadratmeter lagt til for at spare plads og penge.
Hvis man gør et rum lidt større, end det normalt er, kan man pludselig bruge pladsen til meget mere og sågar kombinere to funktioner i ét rum. Her er entréen derfor ikke bare en entré. Når man har taget sine sko af, kan man vende sig om og bruge den som en stue. På den måde sparer man i sidste ende kvadratmeter til ekstra rum, fortæller arkitekt Rasmus Skaarup fra 2r Arkitekter, der har tegnet huset.
Arkitekttegnet hus var drømmen
Netop den slags besparende idéer lagde husets ejer, Marie, mærke til, da hun for et par år siden læste Danske BoligArkitekters reportage, hvor Rasmus Skaarup havde tegnet et flot hus til en familie med et begrænset budget.
Da Marie og hendes mand Jacob i 2015 købte en grund for at bygge et nyt hus, vidste de godt, at pengene var begrænsede. De kontaktede derfor bl.a. Rasmus Skaarup for at bede om hans hjælp.
– Vi ville gerne have et lækkert hus, men vi kunne ikke betale så mange penge for det. Vi spurgte også typehusfirmaer, hvad de kunne bygge for, men et typehus var jo ikke drømmen. Vi var meget bevidste om, at det var once in a lifetime, for jeg tror ikke, at vi kommer til at bygge igen, siger Marie.
Se huset her
Klik for større billeder og swipe for flere billeder
Entré og stue i samme rum
Arkitekt Rasmus Skaarup var klar på udfordringen, og hans budgetsparende kneb har bestemt heller ikke gjort huset dårligere.
Familien boede før i en lille lejlighed, hvor stuen havde samme størrelse som deres nuværende entré. De var derfor meget i tvivl, om kvadratmeterne ville være givet godt ud. Men efter de er flyttet ind, er tvivlen forsvundet.
– Der er masser af plads til at tage flyverdragter af, pigerne har hver sit skab til deres ting, de kan lege her, og vi har lavet en god hyggeplads, som vi ofte bruger. Det er et rigtig godt rum, for ellers var vores stue, der blot er 45 m², det eneste fællesrum, siger Marie.
Kort om byggeriet
- Proces: Byggegrunden i udkanten af København blev købt i 2015. Herefter tog det ni måneder at tegne huset og indgå kontrakt med entreprenøren. En længere periode end normalt, fordi familien havde ændringer og tilføjelser til arkitekternes tegninger og materialevalg. I august 2016 gik byggeriet i gang, og huset stod færdig syv og en halv måned senere i april 2017. Da familien flyttede ind, gik de selv i gang med at lave haven og bygge terrassen. De har også selv sørget for køkkenet og skabene i entréen og er desuden kommet med en masse ideer og forslag undervejs i processen. Under byggeprocessen havde Marie og Jacob hyret en ingeniør til at styre projektet på byggepladsen.
- Materialer udvendigt: Trælameller i sortmalet, trykimprægneret fyrretræ og tagpap på taget.
- Materialer indvendigt: Plankegulve fra Dinesen i lud- og sæbebehandlet douglasgran, alkove med skrivebord i egetræsfiner i kontoret. Køkken, skabe og alkove i entréen i hvide elementer fra Kvik.
- Pris: 3,1 millioner kr. eksklusive grund. Hjælpen fra 2r Arkitekten kostede cirka 75.000 kr. For den pris tegnede de idéoplæg, skrev beskrivelse for familien og anbefalede entreprenør. Familien rettede selv planløsningen til og kom med idéer.
Gang er også bryggers
Hun og Jacob har generelt været imponeret over Rasmus Skaarups fornemmelse for rum.
På samme måde er gangen ned til børneværelserne nemlig blevet bredere, så den ikke blot fungerer som fordelingsgang, men også er et bryggers. Langs rummet er alt børnenes tøj opbevaret, og der er plads til både vaskemaskine, tørretumbler, tørrestativ og et arbejdsbord.
– Det er en genistreg af arkitekten, siger Marie og uddyber:
– Vi ville rigtig gerne have et bryggers, men havde ikke råd til endnu et rum. Løsningen her er derfor megasmart. Og når børnene er puttet, kan jeg stå og ordne tøj, indtil de sover. Jeg skal ikke rende op og ned og frem og tilbage, fortæller Marie.
Huset er derfor reelt uden gangareal, der netop ofte er den største kilde til spildplads i en bolig.
Spar penge og kvadratmeter
- Kombinér rum, så de får to funktioner. På den måde kan du spare kvadratmeter.
- Byg dit hus i få materialer, så du sparer antallet af faggrupper, der skal ind over byggeriet af dit hus. Det mindsker mængden af misforståelser, forsinkelser og kommunikation, der ofte gør, at et projekt tager længere tid og dermed bliver dyrere.
- Maksimér spildpladsen. En halv meter ekstra gør ikke det store for brugbarheden af et rum. Men et par ekstra meter giver nye muligheder og mulighed for at bruge rummet til noget mere og andet.
- Benyt en totalentreprise. Har entreprenøren først givet pris ud fra idéoplægget (dvs. målfaste plan- og facadetegninger i 1:100) er det svært senere i processen at springe fra. Byg i såkaldt totalentreprise som typehusfirmaerne gør. Det betyder, at totalentreprenøren både skal levere selve huset, men også rådgivning til myndigheds- og hovedprojekt. Når der bygges i totalentreprise skal man ikke forvente, at man bliver taget med på råd, når der skal besluttes konstruktionsprincipper og valg af terrændækopbygning. Til gengæld er det med til at sikre, at man kender det samlede byggebudget allerede fra et meget tidligt tidspunkt. Endvidere er det normen, at der bygges ”nøglefærdigt”, når der bygges i totalentreprise. Det vil sige, at alle udgifter skal være med i tilbuddet.
Gode hjem skaber gode liv
Den samlede byggepris på huset endte dog en halv million højere end det oprindelige budget, og der måtte spares flere steder end forventet på grund af nogle tilvalg og uforudsete udfordringer undervejs. Alligevel er familien overrasket over, hvor meget de har fået for pengene.
– Normalt tænker jeg, at vores hus er et ganske almindeligt hus. Men når jeg kommer hjem efter at have besøgt andre, kan jeg godt mærke, at alt her bare er pænt og fungerer. Vores dagligdag og vores liv fungerer, for alt er tænkt ind, og der er en tanke med alle tingene. Vi vidste præcis, hvor vores møbler og ting skulle være, da vi flyttede ind, for huset er jo lavet til os, fortæller Marie og fortsætter:
– Jeg hørte engang en arkitekt sige, at gode hjem skaber gode liv. Det har jeg tænkt meget over siden. Og jeg tror virkelig, at hun har ret i det.
Arkitekters egne huse fra 1950’erne som inspiration
Marie havde selv mange idéer til huset og sagde derfor heller ikke bare ja til arkitekternes første forslag, men udviklede videre på det.
Frem fra reolen finder hun en bog om arkitekternes huse fra 1950’erne og 1960’erne med bl.a. Børge Mogensen, Poul Kjærholm og flere af de andre tunge drenge fra dansk boligbyggeris og møbelarkitekturs guldalder. Marie har hele sit liv været interesseret i arkitektur og er især vild med boligerne fra dengang, og herfra har hun hentet inspirationen til sit eget drømmehus.
Det gjorde huset dyrere
- Lysarkitekt: Familien fik lysarkitekt Asger B.C. til at lave lyssætningen i huset. Alle lamperne er derfor designet af ham. De ens lamper skaber sammenhæng og gør indretningen mere lækker. Flytter familien en dag, vil lamperne blive siddende, da de er en vigtig del af huset. Pris: 75.000 kr. for lamper og rådgivning.
- Gardiner: Ejerne prioriterede at få syet gardiner specifikt til huset, der har store vinduesparter. Gardinerne er fra Brandsborg Gardiner. Pris ca. 40.000 kr.
- Kloakføring: Da huset blev bygget på en grund, der var udstykket fra et af nabohusenes grunde, skulle der først lægges kloak og vandrør. Pris ca. 120.000 kr.
- Ændringer undervejs: Ændrer man i den oprindelige plan, koster det ekstra penge. Det har det også gjort for Marie og Jacob, der fx undervejs besluttede at loftshøjden skulle være 10 cm højere, så der var plads til vinduer over terrassedørene. Loftshøjden er nu på 2,46 meter.
- Dyr have: Det er dyrt at lave en pæn have – og dyrere end Marie og Jacob havde forventet. For at maskiner og håndværkere kunne komme til, blev alle de flotte træer på grunden fældet. Huset tog alle pengene, så da familien flyttede ind, var haven en stor pløjemark. De måtte derfor selv i gang med at bygge terrasse og lave haven. Men når jorden gennem længere tid er blevet presset af tunge maskiner, der har kørt frem og tilbage, forsvinder alt ilten i jorden, hvilket man kalder traktose. Inden parret plantede nye planter, skulle jorden derfor vendes og løsnes. Rådet fra familien lyder derfor: Afsæt en kvart til halv million til haven i budgettet. Haven her, hvor de selv har lavet det meste, har kostet 175.000 kr.
Ikke penge nok – så skulle der prioriteres
Men som det så ofte forholder sig, kunne alt fra drømmen ikke opfyldes. For der var ikke penge til det hele, og udgifter til gardiner, lamper og have var de slet ikke klar over ville tage så meget af budgettet, som de gjorde.
Parret måtte derfor foretage en masse valg og fravalg undervejs i byggeprocessen. De prioriterede at lægge de fleste penge i arkitekturen frem for vilde fliser på badeværelset og et dyrt snedkerkøkken. Og Marie brugte lang tid på at vælge materialer og gik i en masse butikker for at undersøge udvalget. Det tog tid, til gengæld er der ingen valg i huset, hun ærgrer sig over, for hun har selv valgt dem, og ved derfor, hvor hun er gået på kompromis og hvorfor.
Vi skruede op for noget og ned for andet
I stedet for at bruge lidt færre penge alle steder i huset og vælge det næstbedste hver gang, besluttede parret enten at skrue helt op eller helt ned.
– Når vi ikke havde råd til det, vi allerhelst ville have, så downsizede vi fuldstændig og valgte noget helt enkelt og traditionelt. I dag er jeg rigtig glad for den beslutning. Men lige da vores fliser i badeværelset kom på, var jeg sådan: Ej, mit flotte hus skulle da have haft en virkelig lækker flise, siger Marie.
Køkkenet er derfor også helt simpelt i hvidt med grebsløse skuffer.
Familie har ofret penge på lys og Douglas-gulv
Derimod er der skruet maksimalt op for lyssætningen, der er lavet af en lysarkitekt, for det specialbyggede møbel i kontoret, og for gulvet, som parret har valgt i lud-og sæbebehandlet douglasgran.
– Gulvet er blevet det, der kendetegner vores hus. Alle kommenterer det, når de kommer ind og husker netop det fra vores hus. Det skaber et vigtigt blikfang, der gør, at vi ikke behøver mere, der råber op, siger husets ene ejer.



















