
Før var det et helt almindeligt hus fra 1986, men efter, at Maj og Mathias Dahl Sørensen har bygget deres hus totalt om, er det blevet helt sin eget. De har tegnet, indkøbt og lavet næsten alt selv og brugt 1,4 millioner kr. Til gengæld har de fået 255 nye kvadratmeter og en vurderingspris på 4 millioner kr.
Det er ikke til at se, at huset stammer fra 1986. Skallen er da også det eneste, der er tilbage efter en større ombygning, som var både kærkommen og nødvendig for Maj og Mathias Dahl Sørensen og deres fire børn i den nordjyske by Hals.
De købte huset for 1,6 millioner kroner i 2011, men få år senere ændrede deres behov sig.
– Vi fik vores fjerde barn i 2015, og 15 dage senere fik vores ældste datter en hjerneblødning og blev meget syg. Med tiden opdagede vi, at huset ikke længere passede til familien. Vi manglede et værelse, og vores store pige havde brug for at kunne trække sig tilbage fra os andre, husker Maj Dahl Sørensen.
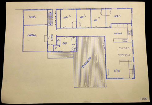
Boligen kort
Hvem bor her: Mathias og Maj Dahl Sørensen, henholdsvis 36 år og projektleder og 37 år og uddannet pædagog og coach. Desuden bor Victoria på 16 år, William på 14 år, Theo på 6 år og Morgan på 5 år i huset.
Hvilken slags hus: Etplansparcelhus fra 1986, nu bygget om og udvidet med 1. sal.
Hvor mange m2: Huset er nu på 255 m2 fordelt på to etager.
Ombygning: Skal vi ikke bare vælte det hele og starte forfra?
I det oprindelige hus, som kun var i ét plan, lå køkken og stue i hver sin ende, og imellem dem var der værelser. Parret var glade for området i Hals med hav, golf og naboer, men de var ikke sikre på, at de kunne finde et velegnet hus her med fem værelser. Derfor besluttede de at bygge det gamle hus helt om.
– Vi er ret jyske og vil gerne have det hele for det halve, så jeg spurgte Mathias, om vi ikke skulle vælte det hele og starte forfra, siger Maj Dahl Sørensen.
Byggetilladelse efter syv versioner af ombygning
Som det skulle ske mange gange siden, blev Majs entusiastiske forslag mødt med skepsis fra hendes mand. Han syntes, det lød dyrt og besværligt, men da han er uddannet teknisk designer og energikonsulent, var der ikke langt fra skepsis til de første skitser.
– I starten tegnede vi bare for sjov, men så kunne vi da også lige så godt søge byggetilladelse, siger Maj Dahl Sørensen.
Det tog parret fem måneder og syv forskellige versioner af projektet, før det blev godkendt af Aalborg Kommune.
– Hver aften, når børnene var puttet, vendte og drejede vi det, og i august 2017 fik vi så grønt lys.
15 banker sagde nej til ombygning i Hals
Men dermed var hurdlerne ikke overstået. Parret havde beregnet, at de skulle låne 1,2 millioner kroner til ombygningen, for de ville selv gøre alt. Der skulle kun betales for materialer, vvs- og elektrikerassistance. Alligevel var der ingen banker, der troede på projektet.
– Vi skulle i gang i september 2017, inden det blev for koldt, og på det tidspunkt havde 15 banker sagt nej til os. Pludselig sagde Nykredit ja alligevel, fortæller Maj Dahl Sørensen begejstret.
Dermed kunne det store byggeri gå i gang, og selvom de havde fire børn om anklerne, og Mathias Dahl Sørensen havde fuldtidsjob, gjorde de det hele selv.
Klik for større billeder og swipe for flere billeder
Inventar og byggematerialer til salg
Først og fremmest solgte de alt, hvad de overhovedet kunne af inventar og gamle byggematerialer. Maj Dahl Sørensen kunne sætte noget til salg på Facebook og kort efter opleve folk komme med traileren langvejsfra for at hente det. Det var paneler, rockwool, plankeværk fra haven samt elementer fra køkken og bad.
Alt blev skrællet, så der til sidst kun var husmurene tilbage. Alene gulvet krævede, at der blev kørt 12 containere affald væk, og parret fik hjælp af venner og familie til det hele, mens de også selv var i gang.
I mellemtiden boede familien i Majs brors 65 kvadratmeter store lejlighed, og det ophold kom til at vare fra september til den følgende sommer.
– Da vi gik i gang, gav vi hånd på, at vi aldrig ville vælge den nemme løsning – også selvom vi blev trætte
Murstensvæg af gamle sten
– Dengang det hele var én stor sandkasse, fik Maj den idé, at vi skulle have en gennemgående murstens¬væg a la New York i huset. For hvor svært kan det lige være at stable nogle mursten oven på hinanden, fortæller Mathias Dahl Sørensen med en sigende mine.
Hans hustru gik i gang med at finde 3.000 gamle mursten, som hun kunne lave sin væg af. De blev fundet i Saltum til 5 kr. stykket.
– Der skulle også støbes en sokkel, men jeg tænkte, at det lød som et fint weekendprojekt, griner Maj Dahl Sørensen, som i den forbindelse fik langt større respekt for murerfaget.
Siden da har hun muret vægge op, pudset dem og malet dem tre gange, og meget af det foregik vinteren 2017-18 med to småbørn på armen i otte graders frost. På et tidspunkt måtte parret endda hælde sprit i cementen, for at den ikke skulle fryse til is.
– Jeg kan faktisk bedst lide at lave det hele selv. Også selvom der stod håndværkere og grinede ad mig, da jeg gik i gang. Men jeg fik da hjælp til at slæbe cementen, husker hun.
Parcelhus fik ekstra etage
I dag står huset nyt og en etage højere end før. I stueplan er der fire børneværelser, et badeværelse samt stue og køkken i ét. Ovenpå er der en stue, et soveværelse og et badeværelse.
– Oprindeligt havde vi egentlig tegnet børneværelserne ovenpå – helt klassisk. Men så tænkte vi over, om det var det, vi ville. Skal børnene pakkes væk, så vi ikke kan høre dem? Børn vil jo alligevel være der, hvor de voksne er. Så ville vi hellere flytte os selv ovenpå, forklarer Maj Dahl Sørensen.
Den idé blev også godkendt på Mathias’ tegneblok, og sådan er huset inddelt i dag, ligesom det blev droppet at have andre døre ovenpå end den til badeværelset. Der er åbent ind til stuen, og et tungt, mørkt gardin trækkes for soveværelset om aftenen, når forældrene går i seng.
– Beslutningen om at ændre på ruminddelingen og placere børneværelserne i stueetagen krævede lidt ekstra arbejde, da kablerne allerede var trukket. Men hellere det end at ærgre sig over det de næste 40 år, siger Mathias Dahl Sørensen og smiler overbærende til sin partner.
Nej tak til den nemme løsning
Faktisk har et af de bærende principper i byggeriet være kompromisløshed.
– Da vi gik i gang, gav vi hånd på, at vi aldrig ville vælge den nemme løsning – også selvom vi blev trætte. Det her hus skal leve op til vores værdier, selvom det indimellem har været fristende at vælge en hurtig eller billig løsning, forklarer Maj Dahl Sørensen.
Det kostede ombygningen
- Huset blev købt i 2011 for 1,6 millioner kroner.
- Ombygningen og udvidelsen til to etager har kostet 1,4 millioner kr.
- I dag er huset vurderet til cirka 4 millioner kr.
Jagten på det bedste tilbud har sparet en halv million
Parret har også brugt mange timer på at holde budgettet nede og altid indhente de billigste tilbud på vvs, ligesom alt træværk i huset er bestilt hjem som metervarer, så de selv kunne montere det og holde sig inden for deres stramme budget.
– Det har i hvert fald sparet os for en halv million, forklarer Mathias Dahl Sørensen, og hans hustru tilføjer:
– Ja, vi kom tit hjem klokken 21.30 om aftenen fra huset, og når alle havde fået mad og var blevet puttet, gik vi i gang med tegneblok og computer for at hente tilbud hjem. Når det blev midnat, var vi ’done’.
For eksempel var der 350.000 kroners forskel på den dyreste og den billigste leverandør af træ, og der var 75.000 kroners forskel mellem den billigste og den næst billigste.
Der er ikke et eneste område, de ikke har bedt om rabat på – og fået det.
– Vi kunne for eksempel godt skære 10.000 kr. af prisen på hvidevarer ved en enkelt telefonopringning, husker Maj Dahl Sørensen.
Trappe og trin er gør det selv
Et andet eksempel er trappen, som går op til førstesalen. Mathias Dahl Sørensen har tegnet den, og så har de fået en lokal smed til at lave selve trappen, mens parret selv har lavet trinene og monteret dem.
– Normalt koster en trappe mellem 75.000 og 100.000 kr., men vores har kostet 13.000 kr. for stålskelettet, 2.000 kr. for trinene og ca. 1.000 kr. for gelænderet. I alt 16.000 kr., fortæller en stolt husejer.
Troldtek-plader i loftet giver bedre akustik
Men faktisk har han kun gennemtrumfet sin vilje to gange i løbet af byggeriet. Det var at få loft til kip i stuen og Troldtekt-plader i loftet.
– Jeg forbinder Troldtekt med sportshaller og ville helst have glatte gipslofter, men i dag kan jeg godt se, at akustikken herinde var blevet et mareridt uden det loft, siger Maj Dahl Sørensen om hele stueetagen, som har sorte betongulve med små søsten i, som til sidst er slebet til en silkemat overflade.
- Vi ville ikke gøre noget anderledes
I juni 2018 var huset klar til, at familien kunne indtage underetagen, og et par måneder senere var overetagen bygget på, og have og indkørsel var på plads.
I dag er der intet, parret ville gøre anderledes – selv skønhedsfejlene i murstensvæggen elsker de. Men det afholder dem ikke fra at bygge en anden gang.
– Men næste gang tror jeg, at vi vil forkæle os selv med nogle flere håndværkere, lyder det fra Maj Dahl Sørensen.


















