Billedserie: 'Japansk mini byhus'
Klik for større billeder og swipe for flere billeder
Skepsis.
Det var den umiddelbare reaktion fra de to japanske arkitekter, Shintaro Fujiwara og Yoshio Muro fra firmaet Fujiwaramuro, da de fik forespørgslen om at tegne et hus til en familie på 4 på en meget lille grund på sølle 36,95 m2.
Skyhøj grundpris og ønsket om plads
Området i Nada i Kobe, hvor grunden ligger, er kendetegnet ved skyhøje ejendomspriser. Men fordi grunden var så lille og klemt inde mellem to huse, var det muligt for familien at få det til en god pris. Da bygherren virkede meget fleksibel og positiv, besluttede de to arkitekter sig for at takke ja til den noget specielle opgave.
Familien ønskede, hvad de fleste familier ønsker sig:
- En garage
- En lys stue
- To børneværelser
- Et soveværelse.
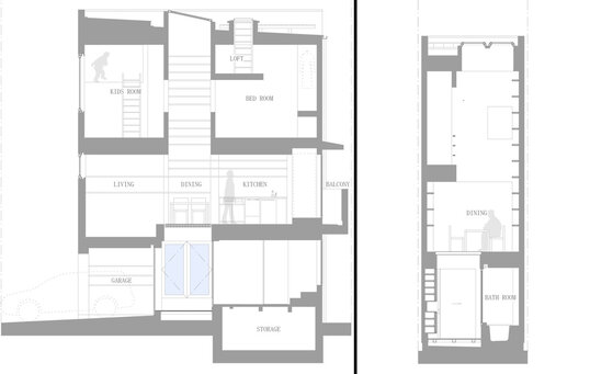
Smalt 3 etagers hus
Og det har de også fået. Huset er endt som en 3 etagers bygning med en lavloftet kælder til opbevaring, en smal garage i stueplanet, der lige præcist er bred nok til en personbil, og en entre, et badeværelse og et toilet.
Entreen er udstyret med et gulv med afløb, så børnene kan åbne vinduerne til badeværelset og bruge området til vandpjaskeri om sommeren.

Det er noget af en udfordring at bygge et 3 etagers hus på en grund, som kun er 37 m2.
Foto: Toshiyuki Yano
Ovenlysvinduer og kig gennem etagerne giver lys
På 1. salen ligger køkkenet, spisepladsen og stuen. For at skabe en fornemmelse af forbindelse til stueetagen er gulvet under spisebordet belagt med tremmer med mellemrum, så man igennem gulvet kan se entreen.
I midten af rummet åbner et atrium op til øverste etage, hvor ovenlysvinduer søger for, at lyset ikke kun falder ind på anden sal, men også på første sal og igennem tremmerne i gulvet ned i stuen. Når ovenlysvinduerne bliver åbnet, kan man mærke en behagelig brise på alle tre etager.

Mellem børneværelset og soveværelset ligger husets atrium, hvor en tørresnor har fundet plads. Når ovenlysvinduerne bliver åbnet, skaber det en herlig brise i hele hjemmet.
Foto: Toshiyuki Yano
Børneværelse og soveværelse på kun 3 m2
På 2. sal er de to børneværelser og soveværelset placeret, og her er indretningen nøje gennemtænkt. En køjeseng fungerer som væg, der opdeler de to børneværelser. Fra den øverste køjeseng er der adgang til det ene værelse, og fra den nederste seng adgang til det andet. Gulvarealet er kun 3 m2 i hvert værelse.
Loftsluge giver adgang til taget
I forældrene soveværelse er der bygget et lille loft for at skabe mere opbevaringsplads. Fra loftet kan man igennem en luge komme op på taget. Det var et ønske fra bygherren, der altid havde ønsket sig en loftsluge, så det fik han. Taget har dog ikke nogen praktisk funktion, udover at man kan nyde udsigten til bjerget Rokko, og det er selvfølgelig heller ikke at kimse af.
Brandsikret cedertræ yderst
Et unikt element ved huset er det røde cedertræ, som huset er beklædt med udvendigt. Lovgivningen påbyder, at man kun bruger brandsikre byggematerialer, så træet skulle brandimprægneres. Det er en ret dyr proces, men husets beskedne størrelse gjorde det økonomisk overkommeligt at bruge dyre kvalitetsmaterialer.
Også vinduesrammerne er lavet i cedertræ. Den smukke træbeklædning får boligen til at skille sig ud fra resten af husene i kvarteret.
Børnefamilie: Huset er småt, men ikke trangt
Familien er særdeles tilfredse med deres lille hjem og efter at have boet i huset et stykke tid, sendte bygherren arkitekterne beskeden:
"Jeg kan godt fornemme, at huset er småt, men jeg føler aldrig, at det er trangt".














