Klik for større billeder og swipe for flere billeder
Det tog ikke mange minutter for arkitekt Martin Wienberg, at se princippet i den nye bolig ved Juelsminde. Det skulle være et rundt hus med udsigtsmuligheder til landskabet hele vejen rundt.
- Lige netop på denne plads i udkanten af det smukke parkområde ville det være utænkeligt med et standard-typehus, siger husets ejere Birthe og Knud Brix, der havde besluttet sig for at bo lidt mindre og mere moderne end på det gods, de havde boet i gennem 17 år.
- Det var helt oplagt, at en arkitekt skulle løse opgaven for os. Vi havde lyst til, i fællesskab med en arkitekt, at forme huset, så det kom til at opfylde vores nye behov, fortæller husets ejere, da Videncentret Bolius talte med dem i 2010.
Fakta om det runde hus
- Sted: Huset ligger ved Juelsminde syd for Horsens i parkområdet tilhørende Palsgaard Gods A/S, der i dag danner rammen om industri, handel, landbrug og skovdrift.
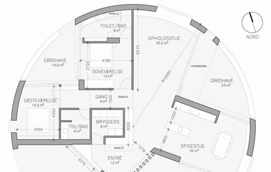
- Husets areal: 143 m2 netto, 172 m2 brutto
- Arkitekt: Martin Wienberg Mortensen, partner, Friis & Moltke.
- Tømrer og totalentreprenør: Henrik Ravn Knudsen, Juelsminde.
- Pris ca. 21.000,- kr. pr. m2, inkl. moms, ekskl. grund. ( 2010-priser)
- Huset er opvarmet med fjernvarme fra godsets halmfyr. Huset opfylder energiklasse 2.
- Fra første skitse til huset stod færdigt til indflytning den 1. december 2009 gik der 11 måneder.
Fordele og ulemper ved arkitekttegnet hus
Fordelene ved at vælge en arkitekt er, at du får et hus, der er tilpasset grunden, og helt er skræddersyet, så det praktisk og æstetisk modsvarer dine ønsker og behov. Og så kan du få et unikt hus, der ikke ligner andre.
Ulempen er, at du ikke kan se huset i praksis, 1:1, før det er færdigt, hvilket du ofte kan med et typehus f.eks. på en byggeudstilling. Og så er der selvfølgelig usikkerheden; om tidsplanen og økonomien holder.

I garagens væg er der indbygget skabe til opbevaring som erstatning for en kælder.
Samarbejdet var alfa og omega
Martin Wienberg, partner i Friis & Moltke, ser det tætte samarbejde med bygherren som det vigtigste. En direkte kontakt og tæt dialog er alfa og omega. Birthe og Knud Brix og arkitekten fandt hurtigt ud af, at de havde samme forståelse for projektet, og dermed var skitseringen, projekteringen og udførelsen uproblematisk.
Valget af den lokale tømrer Henrik Ravn Knudsen, der også var totalentreprenør på projektet, var ikke helt tilfældigt, da husets ejere kendte til hans standard, tidsplaner, prisniveau og holdninger i øvrigt, fra tidligere. De forskellige håndværkere i underentreprise var også glade for samarbejdet, og der var en stor interesse for at løse detaljerne, som de var tænkt.
Hus opleves ikke rundt indvendigt
En terrænregulering skulle iværksættes for at få optimale adgangsforhold til det nye hus. Tidligere lå der på stedet en landarbejderbolig fra 1800-tallet delvis nedsænket i terrænet, da den skulle synes mindst muligt. Den var ikke bevaringsværdig og kunne derfor nedrives. Terrænet blev dermed genskabt, så det fik samme højde som tidligere.
Martin Wienberg havde ikke tegnet runde huse før, men han var sikker på, at huset ikke ville opleves som cirkulært, når man færdes i det. Det skyldes rummenes indbyrdes placering og de glidende overgange mellem dem. Fordelen ved et cirkulært hus er, at det opleves kompakt, uden spildplads og med kort gåafstand mellem rummene.

Fra køkkenet er der udgang til terrassen.

I skabssektionen er der indrettet et hjemmekontor.
Men det gør det udvendigt
Udendørs oplever man derimod, at huset er rundt, Det betyder, at huset ikke har en forside og en bagside, men ligeværdige facader 360 grader. Den runde form understreger, at der indefra er et kontinuerligt kig ud til alle verdenshjørner.
Huset er på 143 m2 netto og består af en opholdsstue, en spisestue i åben forbindelse med køkkenet, et soveværelse med adgang til bad/toilet, et gæsteværelse, gæstetoilet med bad, bryggers og entre. Derudover er der opbevaringsskabe i carporten.
Afdæmpede farver i cirkulært hus
Farveholdningen er afdæmpet, og bestemmes af materialernes egne farver: Indvendigt af hvide vægflader i samklang med egetræets gyldne lød, der ses på gulve, vinduesrammer og listebeklædning. Udvendigt af facadens spån, der med tiden bliver askegrå, så den harmonerer med de lave mure i gråbrændt teglsten og gårdrummenes granitbelægning.
Selvom huset ligger på en markant plads højt i terrænet, virker det neutralt i farveholdningen og godt tilpasset mellem de høje træer.

Huset ligger omgivet af plæne og høje træer.

En lamelvæg danner en gang hen mod hoveddøren.
Tagrender ikke nødvendigt
Husets konstruktion er bygget op af træ. På soklen ligger en limtræsrem modsvarende husets radius på 10 m. Derpå står de bærende lodrette træstolper, som bærer taget og væggene.
Huset har ingen tagrende. Tagkonstruktionen består af vandfaste krydsfinerplader belagt med tagpap med hældninger mod tre nedløbsrør.
Indvendigt består væggene af gips, der er hvidmalet. De cirkulære ydervægge i stue og køkken/spisestue er beklædt med lodrette egetræslister. Gulvene er belagt med lamelparket i 5 mm egetræ. Badeværelser/vådrum er belagt med fliser.





























