Klik for større billeder og swipe for flere billeder
Da Adam Finkelman gik på lejlighedsjagt i New York sammen med sin ven Evan Garfield, var ønsket en billig lejlighed, hvor der var plads til at holde store sammenkomster.
Det viste sig - måske ikke så overraskende - at være lidt af en udfordring; New York er trods alt ikke kendt for sine billige lejemål, så her er det relevant at tænke i small living.
"Gør hvad I vil - men rør ikke gulvene"
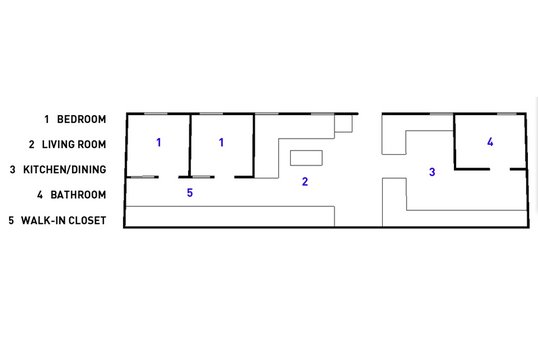
Så da de to kammerater i 2015 faldt over en 65 m2 etværelseslejlighed i Boerum Hill, Brooklyn, med en månedlig husleje på knap 15.000 kroner om måneden, slog de til.
Dog først efter at have spurgt udlejeren, om det var okay at bygge lejligheden om. ’Så længe I ikke rører gulvene,’ lød svaret.
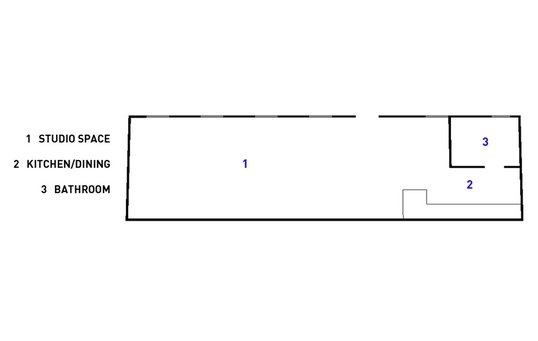
Adam Finkelman der driver sin egen bygge- og designvirksomhed Yorkwood Co, besluttede sammen med sin ven at skabe et kæmpe åbent køkken og fællesrum, hvor man kan feste, og til gengæld nøjes med 2 diminutive, men funktionelle soveværelser.
Gratis genbrugs-byggematerialer på gaden
Da pengene var små, og lejligheden var en lejelejlighed, ville de 2 venner ikke bruge store summer på ombygningen. Heldigvis blev der foretaget mange renoveringer i nabolaget, hvilket betød, at en masse brugte byggematerialer blev stillet ud på fortovene til fri afbenyttelse.
Her fandt parret både gamle vinduer, døre, gulvbrædder og meget andet godt. Andre materialer blev fundet i det amerikanske svar på Den Blå Avis - den såkaldte Craigslist.
Brugen af genbrugsmaterialer betød, at hele renoveringen kostede mindre end 1 måneds husleje.

Der er lige akkurat plads til sengene oppe i hemsen. Foto: Adam Finkelman
Essensen af small living: Indretning af diminutive soveværelser
De 2 kammerater startede med at opsætte 2 hemse, der kun lige var store nok til at kunne rumme deres senge, side om side i den ene ende af lejlighedens rum. Derefter byggede de vægge omkring og mellem hemsene.
I væggen mellem de 2 soveværelser brugte de gammelt tøj som lydisolering - igen for at spare penge. 2 vinduer blev installeret ud mod lejlighedens entre i hvert soveværelse for at sikre, at der var rigeligt med lys.
Til sidst blev værelserne udstyret med en reol, et lille skab, en kommode, et skrivebord med opbevaringsplads, en trappe op til sengen (også med plads til opbevaring) og en skammel. Hvert soveværelse måler cirka 2,14 m x 2,3 m, det vil sige, at der er omkring 5 m2 at boltre sig på.


I køkkenet er der også tænkt funktion ind, når pladsen skal udnyttes. Foto: Adam Finkelman
Køkken-nørklerier
Efter at være blevet færdige med soveværelserne, gik de i gang med køkkenet. De gamle hylder blev taget ned, og køkkenbord, vask og armatur blev smidt ud. En bordplade blev udskåret af massivt træ, og en ny vask og armatur blev installeret.
Over køkkenvasken blev der installeret et opvaskestativ, der samtidig fungerer som køkkenskab. Der er riller i skabets bund, hvilket gør, at overflødigt vand kan dryppe ned i vasken. Den smarte anordning har vennerne selv konstrueret af tørrestativer fra IKEA og malerbakker.
En stor del af køkkengrej, gryder, pander, etc. har parret valgt at hænge på væggene, på den måde er alt lige ved hånden og tager ikke plads op i skabe eller på køkkenbordet.
Selve ombygningen gik ganske smertefrit ifølge Adam Finkelman, men at bo i den konstant støvede lejlighed under renoveringen var mindre behageligt.
Må jeg også ombygge min lejelejlighed?
Ja, men hvilke ændringer du må foretage, afhænger af om du bor til leje i en almen bolig eller et privat lejemål.
1. juli 2005 trådte en ny lov om råderet i almene lejeboliger i kraft. Råderetten handler i al sin enkelhed om, at du har ret til at forbedre din lejelejlighed. Den giver altså lejere, der har lyst til at forbedre eller ændre deres almene lejligheder, mulighed for at gøre det.
Det kan både dreje sig om små justeringer og store ændringer - som opsætning af fliser eller opsætning af nyt køkken. Princippet i råderetten er, at den enkelte lejer selv bestemmer, hvad der skal ændres, og selv sørger for, at arbejdet bliver udført og finansieret.
Ifølge Lejeloven har du også ret til at foretage forbedringer i private lejeboliger. Du har blandt andet ret til at forbedre bad og wc i private lejeboliger. Du må også udskifte de hårde hvidevarer og foretage energibesparende foranstaltninger samt tekniske installationer, herunder elinstallationer.
Hvis du ønsker at udføre andre forbedringer end dem, der er nævnt i Lejeloven, kan du forsøge at lave en aftale med udlejer.
Du skal dog altid søge om tilladelse hos udlejer eller administrator, før du foretager nogle ændringer.
















