Den bulgarske arkitekt Hristina Hristova havde i lang tid fantaseret om sit eget sommerhus, hvor hun sammen med sin mand kunne holde lange ferier tæt på naturen og langt væk fra charterturister og overfyldte hoteller.
Men da økonomien var stram, var køb af en feriebolig eller blot en lille grund ikke en mulighed. I stedet valgte hun (med hjælp fra manden) at bygge et lille sommerhus på hjul.
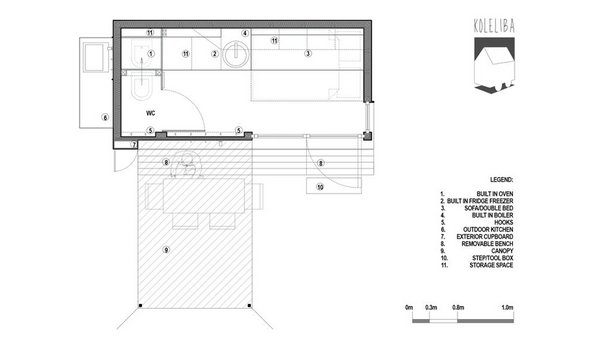
Billedserie: Sommerhus på 9 kvadratmeter: Miniferie to go'
Klik for større billeder og swipe for flere billeder
Bygget på en gammel trailer
Størrelsen var begrænset af, at det skulle være tilladt at trække det bag en bil. En gammel trailer beregnet til transport af havarerede biler blev brugt som fundament. Valget af materialer faldt på grund af det spæde budget på krydsfiner og bulgarsk fyrretræ, som blev oliebehandlet, hvilket dels betyder, at træet kan ånde, og dels at duften af træ bliver i huset for evigt (eller i hvert fald i meget lang tid).

Størrelsen var begrænset af, at det skulle være tilladt at trække det bag en bil. En gammel trailer beregnet til transport af havarerede biler blev brugt som fundament. Foto: Deyan Tomov
Hristina Hristova ville gerne have haft mulighed for at vælge en bedre kvalitet træ til ydersiden af huset, men det var der desværre ikke penge til.
Det færdige hus er udstyret med 9 beskedne kvadratmeter, og selvom den begrænsede plads var en udfordring, formåede parret alligevel at få plads til alt det nødvendige, uden at huset føltes klaustrofobisk.
Panoramavinduer mindsker klaustrofobi
Husets højde på 2,4 m såvel som de store vinduer, var også med til at sikre, at huset føles meget rummeligt. Vinduerne, der går fra gulv til loft, betyder, at udsigten bliver en væsentlig del af huset.
Huset er indrettet med et lille åbent køkken, en hjemmebygget sovesofa, skabe, samt et badeværelse med et kemisk toilet. Bruseren har man dog installeret udendørs, men forbundet til husets varmtvandsbeholder.
- De bulgarske somre er meget varme, vi kan nemt nå temperaturer på 40 grader, så det er mere behageligt at tage bad udendørs, forklarer Hristina Hristova.
I syv måneder blev hver weekend brugt på byggeprojektet, og i juli i år stod det lille sommerhus så klar. Kursen blev sat mod Sortehavets kyst, hvor det unge par lejede en lille grund ved stranden med adgang til vand og elektricitet.

den indvendige del af huset er bygget i fyrretræ, da Hristina elsker duften af træ. En loftshøjde på 2,4 meter er med til at forhindre, at klaustrofobien kryber ind. Foto: Deyan Tomov
Gæster og udeliv
- Det var en fantastisk ferie, specielt efter at vi havde arbejdet så hårdt på huset i så lang tid. Rigtigt mange venner kom og besøgte os, og vi boltrede os på stranden hver dag, fortæller Hristina Hristova.
Eftermiddagsvin gled ofte over i lange middage med alt godt fra havet, og det sociale aspekt var fra starten tænkt ind i husets udformning. Langs husets ene langside løber en bænk, som betyder, at parret uden problemer kan have op til tyve gæster på besøg af gangen. Når huset skal transporteres, kan bænken nemt afmonteres.
For at sikre at gæster og værter også kan se hinanden i de sene aftentimer, er der installeret udendørs belysning samt hvide paneler på husets yderside, der reflekterer lyset.
Hele sommeren uden døre
- Hovedformålet med huset var, at vi skulle tilbringe en masse tid udenfor for at opveje alle de mørke vinterdage, vi tilbringer på kontoret, så den udvendige del af huset blev en naturlig fortsættelse af interiøret, forklarer Hristina Hristova
Huset er døbt ”Koleliba,” et ord opfundet til lejligheden, der betyder ”skur med hjul.” Det er bygget delvist som en protest over forbrugersamfundet.
- Vores sommerhus er et skridt tilbage til en tid uden overflod, men med masser af fritid, glade stunder og venner, ting som vi ellers ofte ofrer i vores jagt på mere, erklærer den unge arkitekt.
Hristina Hristova vurderer, at det har kostet omkring 7.500 euro at bygge huset, hvilket inkluderer arbejdsløn til hende og hendes mand.














