
Egetræ og pudsede mursten er hovedingredienserne i arkitekt Jan Smidt Andreasens og hustruen Mia Maia Smidts nybyggede villa i funkisstil.
Både inde og ude går det varme egetræ igen. På gulvet, rundt om vinduerne, på hoveddøren, i køkkenet, på værelserne og sågar som flotte, smalle lister på carporten. En velvalgt kontrast til den ellers klassisk minimalistiske og lidt kolde funkisstil, som arkitekt Jan Smidt Andreasens og hans hustru, Mia Maia Smidts, hus er bygget i.
Boligen kort
- Hvem bor her: Jan Smidt Andreasen, Mia Maia Smidt og deres to børn på 4 og 1 år.
- Hvilket slags hus: Nybygget hus, som stod færdigt i foråret 2017.
- Hvor mange m2: 203 m² inkl. Jan Smidt Andreasens tegnestue plus 60 m² med carport og udhus.
Moderne funkisvilla med egetræ, puds og beton
– Egetræ er smukt og har en virkelig flot glød og overflade. Vi så et hus i Frankrig, hvor egetræ og hvid puds var kombineret. Det blev vi meget inspireret af og har i det hele taget forsøgt at give huset stoflighed og wauw-effekt med dobbelthøje rum, så snart man træder ind, fortæller arkitekt Jan Smidt Andreasen fra A1 Tegnestue og medlem af Danske BoligArkitekter.
I nogle rum er egetræet skiftet ud med beton for at give et råt modspil, mens flere vægge er malet i fine farver, ligesom det fritstående skab i det ellers hvide og sorte køkken er valgt i en lys blågrøn nuance.
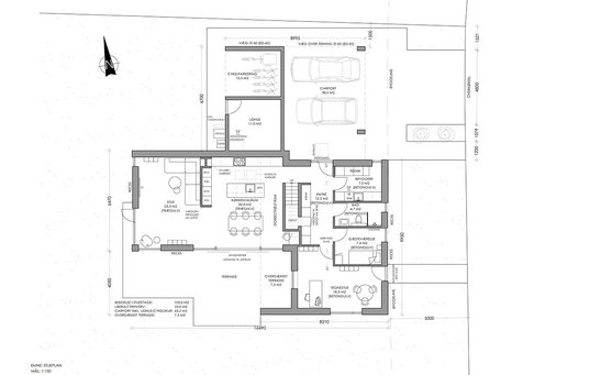
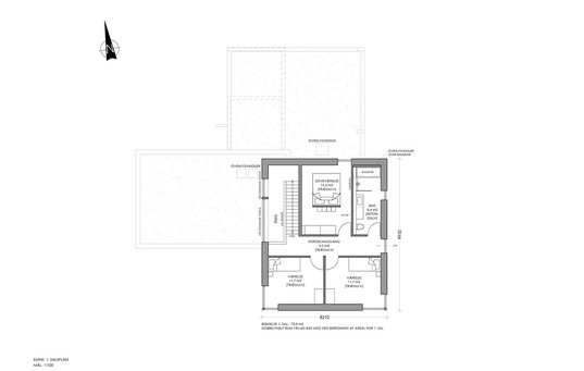
Se huset her
Klik for større billeder og swipe for flere billeder
Arbejdsplads under trappen
I et indhak under trappen i køkken-alrummet er der lavet en lille arbejdsplads til Mia Maia Smidt, mens man kan tage sine sko på i en hyggelig niche i entréen og finde et hemmeligt, ekstra opbevaringsrum inde i skabet. Sådan har parret lavet kroge og gennemførte detaljer overalt.
– Vi ville gerne have et hus med sjæl og varme fra start. Det er tit en udfordring med nye huse. De ender ofte meget ferske, med hvide, regulære rum og uden personlighed. Det skyldes til dels tidens byggestil, men også at mange tænker for meget i vedligeholdelsesfrie materialer, der tit er fattige på stoflighed, siger arkitekt Jan Smidt Andreasen.
Fra ældre hus til nyt hus
Jan Smidt Andreasen og Mia Maia Smidts oprindelige plan var egentlig også at købe et ældre hus, de kunne bygge om, da deres lejlighed midt i Odense var ved at blive for trang. Med dengang ét barn og egen tegnestue på hjemmeadressen havde de brug for mere plads. Men handlen med et hus, de var meget interesserede i, glippede, hvorfor de måtte se sig om efter andre muligheder.
– Som arkitekt har jeg altid drømt om at bygge mit eget hus, men der skulle en del overtalelse af Mia Maia til, før vi besluttede os for at bygge selv. For mens jeg gerne vil have det stringent, vil hun gerne have det hyggeligt og har derfor været meget imod at bo i et nyt hus, fortæller Jan Smidt Andreasen.
Han fik hende dog til sidst overtalt og har været glad for hendes modspil i designprocessen, hvor de i fællesskab har lavet den perfekte kombination af minimalistisk indretning, smukke materialer og grafiske linjer, der samtidig fungerer som en god ramme for familien.
Sådan var byggeriet af det moderne funkishus
Byggeprocessen: Arkitekt Jan Smidt Andreasen har selv stået for alt fra idé til projektering. Herefter har han hentet tilbud ind fra håndværkere. Han har selv været på byggepladsen hver dag.
Tid: Byggeriet gik i gang i efteråret 2016 og stod færdigt påsken 2017.
Materialer udvendigt: Egetræ og pudsede mursten.
Materialer indvendigt: Betongulv, massivt egetræsgulv (20 mm), IKEA-køkken og -badeværelse med fronter fra Reform. Det samme gælder skabet i entréen. Sorte armaturer og vaske fra Vola i køkken og badeværelse.
Pris: Ca. 4 millioner kr.
Arkitektpris: For et lignende projekt ville Jan Smidt Andreasen tage ca. 150.000 kr. Prisen inkluderer alt fra idé til færdigt hus.
Svært at finde grund til toplanshus
Men en masse ting skulle gå op i en højere enhed, før de kunne bygge. Der er nemlig langt mellem nye byggegrunde tæt på en stor by som Odense, hvor de gerne ville blive boende. Desuden ville de ikke bygge på en helt flad mark, ligesom de ønskede at bygge i to etager. Og det er sjældent tilladt at bygge i nye parcelhusudstykninger.
– Vi er begge vokset op i etplanshuse fra 1960’erne, så vi ville gerne prøve noget andet. Og et hus i to plan giver bare flere muligheder for at lave noget anderledes, siger Jan Smidt Andreasen.
Trods de svære odds lykkedes det parret at finde en grund syv kilometer fra Odenses centrum med cykelsti hele vejen og i et område, hvor der bor mange andre børnefamilier. Jan Smidt Andreasen begyndte derfor at tegne og hente tilbud ind fra håndværkere, og efter et år med byggeri stod huset færdigt i påsken 2017. Lige i tide til at Mia Maia Smidt kunne føde deres barn nummer to uden byggerod
Inspiration fra Arne Jacobsens funkishus
Når man banker på i dag, kigger man ind ad et rundt vindue i en smuk egetræsdør, hvorigennem man kan skimte, når en fra familien lukker op. Døren er inspireret af hoveddøren i arkitekt Arne Jacobsens egen funkisvilla i Charlottenlund.
– Vi er begge vilde med funkishuse, så det var den stil, vi ville bygge i, og her var det vigtigt for os at bygge med alle de klassiske træk, fortæller Jan Smidt Andreasen.
Huset er derfor også bygget med de karakteristiske hjørnevinduer, ligesom taget er fladt, og murværket er uden pynt og overflødige detaljer.
Indenfor er funktion også et nøgleord. For uden kælder og loftrum, hvor man lige kan gemme vintertøjet væk om sommeren og stille kassen med julepynt, er der behov for gennemtænkte løsninger. Også de visuelle linjer er videreført.
– Den runde form går igen flere steder i huset både som vinduer, på skabsgrebene i køkkenet, på badeværelset og i spejlene. Visse materialer går igen, det gælder fx de hvide, kvadratiske fliser, der er brugt flere steder. Jeg kan godt lide, når der er en rød tråd, siger Jan Smidt Andreasen, der især er glad for linjerne i køkken-alrummet.
– At der lige er skåret et hjørne af rummet til nichen under trappen, er en detalje, jeg er rigtig glad for. Det skaber en flot linje i rummet sammen med trappen og giver lidt ekstra karakter til nichen.
Gode råd fra arkitekten
Husk carport, cykelskur og skraldespand. Ofte er pengene brugt, når du når til det, og det ligner en rodebunke foran huset. Det er ærgerligt.
Lad materialer og elementer gå igen. Vi har brugt egetræ både inde og ude for at bløde de hvide flader op. Det giver en flot helhed. Brug også fx de samme armaturer i alle rum — måske ikke nøjagtig de samme, men det samme design. Vores badeværelser er fx stort set ens, ligesom elementerne fra Reform og de kvadratiske, hvide fliser er brugt både i køkken og på badeværelser. Også den runde form fra vinduerne går igen i greb og spejle.
Valg af materialer. Gå efter det gedigne med lang, lang levetid; et massivt trægulv skal jo ikke skiftes ud efter 10 år, men kan slibes.
Især ved nybyggeri er det vigtigt at få materialer med stoflighed og varme, så det ikke bliver for koldt. Her er træ et rigtig godt valg. Og gå altid efter ’ærlige’ materialer i stedet for fx kunstigt trælook i fibercement, der har åretegninger i overfladen for at ligne træ.
Brug materialer, der er tilgængelige, hvor du bor, så de ikke skal transporteres langvejsfra.
Vedligeholdelse. Vær ikke bange for materialer, der skal vedligeholdes. Med den rette vedligeholdelse kan et materiale som træ holde i mange år.


















