Klik for større billeder og swipe for flere billeder
Boligen kort
Hvem bor her:
Camilla og Brian Da Costa Carlsen samt Julie på 9 og Elias på 2 år.
Hvilken slags hus:
Oprindelig 60'er-hus med fladt build up-tag og gule sten i Greve syd for København.
Hvor mange m2:
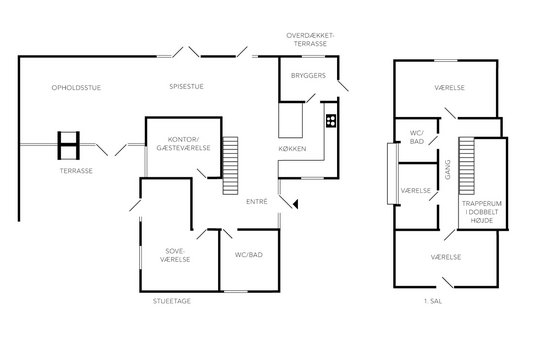
Huset var på 148 m2, men er nu vokset til 205 m2.
Kan en ombygning fungere som en slags husterapi, der får beboere og hjem på god fod med hinanden igen? I Camilla og Brian Da Costa Carlsens tilfælde er svaret ja. Videncentret Bolius talte med parret i 2016.
Historien begynder, da Brian, højgravide Camilla og deres datter, Julie, kom hjem fra juleferie til en vandskade. Ikke den store katastrofe, selvom det da var ærgerligt i deres efterhånden nyrenoverede 1960'er-hus og spritnye køkken. Forsikringen blev orienteret, lækagen fundet, og der blev sat en affugter op. I mellemtiden kom lille Elias til verden, og alt imens kørte affugteren stadig - efterhånden til spædbarnsfamiliens irritation.
Fugtig slagge under gulvet
- Vi fik en taksator ud, der også undrede sig over, at der blev ved med at være fugtigt. Så tog han en prøve, hvor han gravede noget ubestemmeligt op fra under gulvet. Jeg kunne nærmest se på hans ansigtsudtryk, at den ikke var god, fortæller Brian.
Det, som taksatoren gravede frem under gulvet, var slagge - et populært fyldmateriale fra husets barndom. Problemet er, at når slaggen bliver fugtig, er den umulig at få tør igen. Der var derfor ingen anden løsning end at bryde hele gulvet op og at få udbedret skaderne. Da lille Elias var otte dage gammel, blev familien genhuset. Imens viste udgravningen skimmel under gulvbrædderne i alle husets rum, og da der blev pillet ved lofterne, viste det sig, at der også var problemer med taget.

Camilla Da Costa Carlsen arbejder selv med indretning og sørgede for, at familien hurtigt kom på plads i huset efter den opslidende renovering og ombygning. Foto: Christina Kayser Onsgaard
Filmen knækkede for boligejerne
- Da vi fandt ud af, at der var skimmel i tagspærene, knækkede filmen for os. Nu var der efterhånden gået et halvt år, vi var genhuset i et kedeligt industrikvarter, og vi ville bare gerne hjem. Forsikringen dækkede ikke skaden på taget, og det eneste, vi hørte, var: flere reparationer, flere omkostninger, flere penge. Omvendt hang vi jo på det her hus og måtte gøre noget. Så midt i elendigheden valgte vi at prøve at se positivt på det hele, bruge flere penge og få realiseret nogle af de drømme, vi havde for huset. Det var faktisk en lettelse at nå frem til det punkt, fortæller Brian.
Det var her, at Morten Dalsgaard fra m4 Arkitekter kom ind i billedet.
Empatisk arkitekt fik ejerne på ret kurs
- Morten er et positivt og roligt menneske - lige det vi havde brug for. Han havde stor empati for vores situation, og da vi sad på terrassen og fortalte om vores idéer og ønsker, begyndte han at skitsere og tegne med det samme. Imens sad vi bare og smilede, for nu begyndte vi at tænke i drømme og muligheder frem for bare skader, ulykke og økonomi, fortæller Brian.
Med arkitektens hjælp begyndte den husterapi og ombygning, der skulle vende familiens ulykke til en fordel til en skarp og moderne villa med en ny 1. sal.
- Det var faktisk på vores allerførste møde, at idéen om det høje rum med kig til hanebåndene i midten af huset opstod, fortæller Brian.
Sådan var byggeprocessen
M4 Arkitekter kom på projektet, gik der et år, til huset stod færdigt. Det lange tidsrum skyldes, at byggesagen blev bremset i kommunens byggeforvaltning i over et halvt år på grund af tvivl om den tilladte bebyggelsesprocent. Det blev løst ved aktiv indsats fra arkitekt og landinspektør, der holdt på deres beregninger og familiens ret.
Styring: Arkitekt Morten Dalsgaard tegnede projektet til og med myndighedsprojekteringen. Materialevalg og samarbejde med entreprenør stod familien selv for.
Entreprise: Opdelt i to etaper. Forsikringsentreprisen med rådgivning og sagsbehandling og udgravning og reetablering efter fugtskaden blev udført af entreprenør Michael Bygum, mens overetage, det nye tag, indervægge, gulv samt projektering, ingeniørberegninger og projektstyrering blev udført af Bo Filtenborg.
Interiør: Alle materialevalg har familien selv stået for. Trappen er produceret og opsat af Trappemanden. Køkkenet, der blev renoveret kort før vandskaden, blev pillet ned og sat op igen under ombygningen.
Pris: Det meste af istandsættelsen af underetagen er afregnet direkte mellem entreprenør og forsikringsselskab. Ombygningen med overetagen kostede 2,5 mio. kr. Heraf arkitekthonorar på ca. 50.000 kr., der omfattede skitser, rådgivning, myndighedsprojekt, møde med kommunen, skyggeberegninger (ift. naboer), sag med Natur- og Miljøklagenævnet og tæt dialog med landinspektør Kristian Baatrup fra Landinspektørkontoret.
Dobbelthøjt rum giver ekstra oplevelse
Morten Dalsgaard var i det hele taget fortrøstningsfuld, da han kom på opgaven, og holdt fokus på at skabe plads og oplevelser i det ombyggede hus.
- Da fugtproblemerne var blevet løst, fejlede huset jo ikke noget. Hovedgrebet med ombygningen har været at vise - både ude og inde - at der er kommet en 1. sal på. Det er det første, man oplever, når man kommer indenfor, hvor lyset vælter ned fra oven. Det dobbelthøje rum er måske spildareal for nogle, men for mig en måde at skabe oplevelser på og samtidig holde bebyggelsesprocenten nede. Der kommer ofte nogle gode ting ud af at skulle få sådan et regnskab til at gå op, fortæller arkitekt Morten Dalsgaard.

Kig op ad den nye trappe. Den åbne løsning med det dobbelthøje rum til den nye 1. sal skaber en god forbindelse mellem etagerne. Foto: Christina Kayser Onsgaard
Trappen - nøglen til hele huset
I den nye planløsning har hele familien fået soveværelser på den nye 1. sal, og åbenheden til overetagen gør huset mere overskueligt og sætter de nye kvadratmeter i spil i indretningen, sådan som familien ønskede sig det.
- Vi var meget opsat på, at 1. salen ikke bare skulle blive et sted, man gik hen for at sove, siger Brian.
Trappen op til de 60 nye kvadratmeter har Camilla og Brian selv udtænkt ned til mindste detalje.
- Det var en god, afgrænset opgave, - en spændende og positiv proces. Trappen er jo en vigtig ting - den er hele nøglen til huset og det første, man møder, når man kommer ind, siger Brian.

Terrassen fortsætter stilen indefra med en effektfuld skifervæg. Foto: Christina Kayser Onsgaard
Nu har de tilgivet deres hus
Udefra er huset mærkbart forandret. Det originale flade tag er erstattet med et klassisk sort tegltag på husets midterste krop, og de oprindelige gule mursten er blevet filtset.
- Det oprindelige hus havde en meget enkel form, og det er det tema, vi har ført videre. 1. salen er tænkt som en forlængelse af huset med den samme facade, der fortsætter opad. På den måde ser det heller ikke så bombastisk ud, og de to husdele spiller fint sammen, siger arkitekt Morten Dalsgaard.
Camilla og Brian har i dag omsider tilgivet deres hus, at det forrådte dem, da de allermindst havde brug for det. Men som med alle store kriser tager det tid at komme sig over dem.
- Det var meget surrealistisk at flytte hjem igen. Vi havde jo aldrig rigtig prøvet at bo her med to børn. Camilla og hendes indretning var den bærende kraft, der fik alt til hurtigt at falde på plads. Det tager tid at komme tilbage til sit hus efter sådan en omgang, men i dag er vi superstolte over alle de beslutninger, vi tog, siger Brian Da Costa Carlsen.





















