
Rikke og Jacobs hus har ikke været hurtigt at flytte ind i, de har taget sig god tid til at få det lavet lige som de ønskede sig. Foto: Christina Kayser Onsgaard
Familien i huset
Hvem: Rikke, familierådgiver og Jacob, ingeniør og ejer af et plastfirma, samt deres 2 døtre på 5 og 7 år.
Hvad: Villa tegnet af arkitekt Jesper Thyge Brøgger i 2011.
Hvor: Tåsinge.
Det krævede ingen overvejelser, da Rikke og Jacob efter længere tids søgen fik nys om et dødsbo på Tåsinge lige ned til Svendborg Sund.
Parret bød på grunden, og buddet blev accepteret.
- Og det var kun et plus, at huset på grunden var nedrivningsværdigt, for så kunne vi bygge vores eget og få alt, præcis som vi ville have det, siger Rikke.
Det er i dag 4 år siden, at hun og Jacob skrev under på købsaftalen, men kun 2 år siden, at familien, der også tæller 2 døtre på 5 og 7 år, flyttede ind. For parret tog sig tid til at tænke over alle detaljer i deres kommende hus.
Klik for større billeder og swipe for flere billeder
Egen badebro og maritime omgivelser på Tåsinge
- Vi har bygget et hus før, og selvom vi i det store hele var tilfredse, så kunne vi også bare konstatere efter kort tid, at vi havde lavet nogle hovsaløsninger, som ærgrede os. Det ville vi ikke risikere denne gang, fortæller Jacob.
At det lige netop blev Tåsinge, valget faldt på, var lidt tilfældigt. Ønsket var egentlig Svendborg. Rikke kommer fra Thurø, der ligger lige ved siden af Tåsinge, mens Jacob er fra Ringe.
- Jeg var nem at lokke herned. Svendborg er en hyggelig by med det maritime som overskrift, og da jeg holder meget af at sejle, så kunne jeg ikke bo et bedre sted, siger Jacob.
Og grunden ligger da også helt ned til sundet og har egen badebro, hvor hele familien bader fra om sommeren, og hvor Jacob kan lægge til med deres båd, når alle skal med på udflugt til vands.
Fakta om huset


Foto: Christina Kayser Onsgaard
Materialer:
Murværket er blådampede sten fra Petersen Tegl, som familien valgte, fordi de synes, at stenene er tidløse og praktisk vedligeholdelsesfri.
I det hele taget har det vedligeholdelsesfrie element været et kodeord for valget af materialer.
Træværket på terrassen er ipé, der hverken kræver oliering eller maling. Højst en gang algerens hvert 2. år.
I havegangen er der lagt granitfliser, der er slidstærke, og som ikke er plaget af algevækst.
Bæredygtighed:
Der er anlagt jordvarmeanlæg på grunden med 2 gravede huller, som er intet mindre end 100 meter dybe hver især, i stedet for som traditionelt at grave en jordslange, der bugter sig rundt på grunden, men ikke specielt dybt nede. Dybden på hullerne gør, at den væske, der løber i slangerne, altid er mindst 7 grader varmt, og der skal derfor ikke bruges så meget energi på at omsætte jordvarmen til højere temperaturer.
Herudover er der solceller på taget – vel at mærke placeret, så de ikke kan ses.
De energi- og miljørigtige tiltag betyder, at familien årligt bruger under 10.000 kr. på strøm og opvarmning. Det betyder, at jordvarmeanlægget og solcellerne hurtigt tjener sig selv hjem.
Naturlige materialer i fokus

Parret har valgt loft til gulv vinduer som giver et fantastisk lysindfald, og en dejlig udsigt til naturen som jo aldrig bliver umoderne siger Jacob. Foto: Christina Kayser Onsgaard
Da Rikke og Jacob gik i gang med at skitsere deres drømmehus, var ønsket at bygge et hjem i en klassisk, stilren arkitektonisk stil, som både ville være praktisk og smukt at skue, når de engang blev gamle.
- Vi kan godt lide Arne Jacobsen og hele den stil med store, rene linjer og store vinduespartier, der giver sådan en dejlig tidløs ro. Og ja, ved netop at placere gulv til loft-vinduer i alle rum i boligen så er vi badet i naturligt dagslys, uanset hvor vi opholder os, og det gør altså noget godt for ens humør, siger Jacob.
På materialesiden var parret heller ikke i tvivl: Så mange naturlige materialer som overhovedet muligt.
- Det er rart at være omgivet af naturens egne materialer frem for kunstigt fremstillede og faktisk også fascinerende hver dag at blive mindet om, hvad naturen kan præstere. Naturen bliver aldrig umoderne, siger Jacob.
Rikke og Jacobs tips til nybyggere
- Gør jeres forarbejde godt, både hvad angår de store linjer og små detaljer i jeres kommende bolig – så minimeres hovsaløsninger, og det gør det lettere at gennemføre selve byggeprocessen hurtigere.
- Find en arkitekt, der kan realisere jeres ønsker professionelt.
- Hyr en byggerådgiver til at styre byggeprocessen. Han er din mand i marken over for entreprenør og håndværkere, hvilket er penge godt givet ud.
- Før du vælger arkitekt, byggerådgiver, entreprenør, håndværkere, så søg referencer. En del fagfolk kan alt, når de skal sælge sig selv, men intet slår gode referencer.
- Vi valgte en lille entreprenørvirksomhed til, som stod for hele byggeriet. Vores hus var deres eneste projekt, hvilket betød, at det ikke blot var et ud af mange, og at vores hus fik fuld fokus.
To plan gav for meget spildplads
De naturlige materialer tæller blandt andet murværk i teglsten, egetræsplanker fra Dinesen og travertinklinker på gulvene fra Billeschous Stenhuggerier, granit i havegangen, træ på terrassen og egetræ i køkkenet.
Familien var heller ikke i tvivl om, at huset kun skulle være i 1 plan og med kælder.
- Vi har tidligere boet i 2 plan og syntes, der gik meget spildplads med trappearealer og gangarealer. 2 plan betyder også, at du er meget fysisk adskilt som familie. Det vil vi ikke være, slutter Jacob.
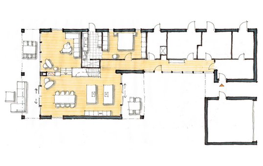
Plantegning af huset

- Huset er på 246 m2, dertil kommer en kælder på 84 m2 og en garage på 45 m2.
- Huset består af et stort køkken-alrum, en stue, en lang gang, soveværelse, forældrebadeværelse, 2 børneværelser, et gæsteværelse, et børnebadeværelse og et bryggers.
- Grunden er på 1.238 m2.
















