Se huset her
Klik for større billeder og swipe for flere billeder
Drømmen om en have fik storbyboere til at flytte fra deres toetages lejlighed i det centrale Stockholm til landlige omgivelser ved Mälaren-søen knap 40 kilometer vest for Stockholm.
Arkitekten foreslog derfor et hus med grønne vægge, så huset med tiden bliver en integreret del af havens vegetation.

Minimodel af det trekantede hus.
Det yderste af væggene på Garden House, som huset hedder, er skabt som et gigantisk espalier, som endda går over nogle af husets vinduer, så de med tiden bliver dækket af den lodrette have.
Vinterhave af glas i trekantet hus
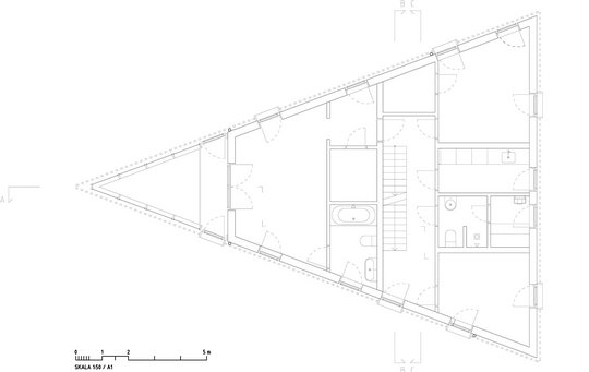
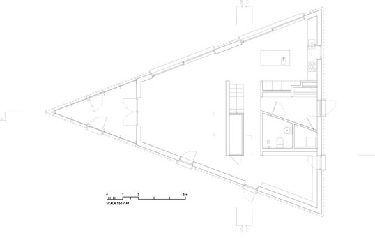
Udfordringen ved terrænets markante stigning på tværs af byggegrunden løste arkitekterne ved at lave en trekantet grundplan og ved samtidig at placere husets lange væg mod syd, lykkedes det helt at undgå en nordvendt væg i huset.
I husets vestspids er der bag espalieret en vinterhave af glas, som går op i hele husets højde. Det giver et dejligt rum og fungerer samtidig som en naturlig opvarmning af den friske luft.
Tag er terrasse
Taget på det grønne træhus er indrettet som terrasse, hvor husets beboere har udsigt til Mälarens kuperede terræn.

Med tiden skal planter slynge sig op af det gigantiske espalier.

Udsigt fra vinterhaven, som går op i hele husets højde.
Fakta om Garden House
- Huset ligger nær Viksberg ved Mälaren i Södermanland i Sverige 39 km. fra Stockholm.
- Byggeriet stod færdigt i 2008 og er tegnet af arkitekterne Bolle Tham og Martin Videgård Hansson.
- Grunden er 1.006 m2. Husets areal er 360 m2 plus tagterrasse.
- Huset er et træhus.














