Klik for større billeder og swipe for flere billeder
Hvad gør man, når man skal dele et helt hjem og gå fra 180 m2 til 70 m2? Når man skal indrette sig i en ny bolig med børn og ikke ved, hvor man skal starte?
Den situation stod jeg i for tre år siden, og det blev lidt af en udfordring at få indrettet sig, så både mine to børn, hund og jeg selv fik det hjem, vi kunne leve videre i.
Efter skilsmisse: Ville bo tæt på børns skole
Først og fremmest skulle jeg finde et sted i nærheden af mine børns skole, så deres liv ikke skulle forandres på samtlige fronter. Børnenes far og jeg lavede en såkaldt 7-7-ordning, hvor vores børn bor en uge på skift hos os, og da han bor ca. halvanden kilometer fra børnenes skole, ville jeg også finde vores nye hjem tæt på både børnenes skole, kammerater og deres far.
Det skulle vise sig ikke at være så nemt. Mit budget passede ikke til de udbudte ejerboliger i området, så jeg måtte finde en lejebolig. Her måtte jeg sande, at der stort set ingen (ledige) lejeboliger var at finde i vores område. Så det var om at tænke kreativt.
10 gode råd til at bo småt
- Minimér – smid ud og ryd op. Det er alfa og omega, hvis ikke I skal drukne i rod.
- Prioritér gode opbevaringsmuligheder og optimal udnyttelse af pladsen.
- Brug din fantasi: udnyt plads i højden, i hjørner og hulrum.
- Sæt ambitionsniveauet ned. Er det fx nødvendigt, at service og kaffestel til 24 personer fylder op i køkkenskabene?
- Tænk i møbler med flere funktioner.
- Vær opmærksom, når du køber nye møbler. Ting skal have plads, funktion og berettigelse, ellers står de bare og fylder op.
- Køb ind med omtanke; selvom storkøb og økonomistørrelser er billigere på den lange bane, er det ikke løsningen, hvis der er pladsmangel i skabene.
- Saml jeres garderober ét sted, fx en skabsvæg med plads til hele familiens tøj og ting.
- Ét stort (skrive)bord i hjemmet er nok, spar på pladskrævende skriveborde i børneværelser.
- Accepter kompromiser og tillad dig selv at nyde den frihed, der kan følge med.
Jeg spurgte alle om bolig
Jeg skrev til alle, jeg kunne komme i tanke om i vores lokalmiljø, udleverede telefonnummer til højre og venstre, bed al generthed i mig og spurgte alle i min omgangskreds. Alt sammen i håb om, at nogen kendte nogen, der kendte nogen ...
Selvfølgelig skrev jeg mig også op på de nærliggende boligselskabers ventelister og sites. De grinede overbærende af mig, når jeg ringede. ”Ja, vi har så 20 års ventetid, men du kan skrive dig op via vores hjemmeside”.
Fandt bolig i lokal Facebook-gruppe
Løsningen var lige for næsen af mig. En lokal Facebook-gruppe blev min redning, da en familie svarede på min efterlysning. Pludselig stod jeg med en villalejlighed tæt på børnenes skole i et hyggeligt og trygt område. Lejligheden var fantastisk: Nyrenoveret, lys og loft til kip med fritlagte bjælker, men der var tre udfordringer: Den var for lille, huslejen var over mit budget, og der manglede en have til min hund.
Alligevel sagde jeg ja. Jeg fulgte min mavefornemmelse, for jeg kunne se muligheder i boligen, og desuden var der god kemi mellem udlejerne og mig. En omprioritering i budgettet gav luft til en højere husleje, og så måtte jeg finde en løsning på de to andre udfordringer. Det vender jeg tilbage til.
Soveværelset blev delt i to med ekstra væg
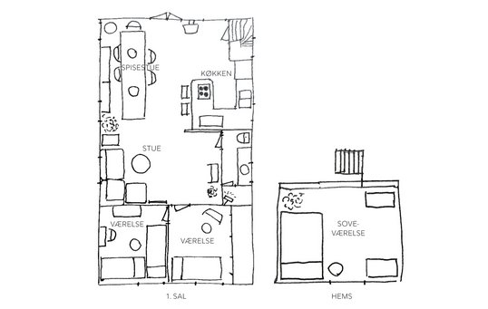
Mit første projekt var at få indretningen til at gå op. Lejligheden havde bare to værelser fordelt på i alt 70 m2 og bestod reelt set af ét stort rum – køkken, spise- og dagligstue – samt et soveværelse. Med tre halv- og helstore voksne i husstanden var der brug for et og helst også to værelser mere, hvis vi skulle have mulighed for lidt privatliv hver især.
Jeg ledte efter inspiration på nettet og i mit netværk. Jeg erfarede, at mange fandt svaret i en sovesofa i stuen og (op)deling af værelserne, enten med køjesenge, rumdelere eller væg.
Men da mine børn er teenagere, er det ikke en holdbar løsning. Derfor valgte jeg at gå efter en opsplitning af soveværelset. Værelset har to store vinduer, og mellem dem kom væggen op. Ikke en helt ideel løsning, da adgangen til det ene værelse går gennem det andet, men det var den mulighed, vi havde, og mine børn var glade for at få deres eget værelse.

Lejligheden har en lille hems oppe under tagryggen med adgang via en stige. Efter en grundig oprydning, benhård udsmidning og en gang maling blev det mit soveværelse. Foto: Lene Samsø
Soveværelse på hemsen
Så var der mig. Jeg kender andre enlige forældre, som har ’soveværelse’ i stuen og sover på en udtrækssofa. Den løsning er måske ikke optimal, men dog en mulighed på få kvadratmeter.
Jeg var bare ikke helt klar til den løsning, fordi jeg i så fald skulle tilbringe det meste af døgnets timer i det samme rum. Jeg er selvstændig og har arbejdsplads ved spisebordet, og tanken om at sove i det samme rum, som jeg arbejder, laver mad, spiser og holder fri i, blev en smule klaustrofobisk. Jeg opererede længe med overvejelser om endnu en opdeling med væg, men der var hensyn til både skråvægge, en radiator og vinduer i spil, og det gav både besværlige og fordyrende komplikationer.
Så i stedet for kiggede jeg opad. Lejligheden har en lille hems oppe under tagryggen med adgang via en stige, hvor vi i første omgang havde smidt en masse rod og flyttekasser op. Efter en grundig oprydning, benhård udsmidning og en gang maling blev det mit soveværelse. Det er – indrømmet – et lidt komprimeret kompromis, men bliver jeg træt af at kravle op under loftet for at sove, låner jeg den ekstra seng, som står på min datters værelse i de uger, hvor hun bor hos sin far.

Det er det vigtigt at have områder med god plads omkring møblerne, selvom man bor komprimeret. Hyggehjørnet i stuen her med Wegners ”lufthavnsstol” og lampen Mega Bulb fra &tradition. Foto: Lene Samsø
Mindre plads, men mere samvær
De kompromiser, vi har indgået, har vist sig at være nøglen til en vellykket transit og downsizing til vores nye liv på færre kvadratmeter og budget. Det ville være løgn, hvis jeg påstod, at vi ikke kunne bruge lidt mere plads og en matrikel, der helt er vores egen.
Men når jeg i dag kigger tilbage, føler jeg mig meget heldig, for det viste sig, at de 70 m2 giver mere nær- og samvær med min lille familie, end jeg kunne have drømt om.
I dag hygger vi os sammen i stuen, vi ser tv, det er også her, der bliver lavet lektier, og i det hele taget foregår de fleste aktiviteter i samme rum, også selvom vi ikke nødvendigvis laver det samme.
Går tur med hunden i skoven
Med det halverede samvær med mine børn er jeg taknemmelig for, at vi er rykket nærmere hinanden i bogstaveligste forstand, og hvad jeg troede skulle blive en masse pressede kompromiser, har vist sig mest at være det modsatte.
Selv den manglende have har sine fordele. En rummelig altan giver os mulighed for udendørs ophold, og hunden lader til at have det o.k. med at skifte haven ud med ture i den nærliggende skov. Og fra min altan nyder jeg at overlade græsslåning og snerydning til andre.
Mit råd til andre i samme situation som mig er derfor: Se muligheder i stedet for begrænsninger. Med fantasi, research, planlægning – og en god del ihærdighed og arbejde – kan du skabe de bedste rammer for jeres nye liv.
Skilsmissebørn: Hvordan får du mere plads?
- Opdel rummet med en væg. Det er ikke så kompliceret – få et tilbud på væggen hos en tømrer. Der er penge at spare, hvis du selv kan spartle og male væggen efterfølgende.
- Hvis din seng skal stå i stuen, er det flot at lave en væg af gamle vinduer.
- En sovesofa er en løsning, hvis stuen ikke kan deles. En stor daybed kan være seng om natten og sofa om dagen. Opbevar sengetøj i store pudebetræk til gulvpuder, eller læg det under daybed’en i en praktisk sengeskuffe.
- Deler du værelse med dit mindreårige barn, kan en halvvæg være fin. Byg den af krydsfiner.
- Små børn kan sagtens dele værelse. Lav evt. en optisk opdeling af rummet med forskellige farver på senge, sengetekstiler, tapet og småmøbler, eller brug en åben reol som praktisk rumdeler.
- En eller to ribber til klatring kan dele børneværelset på en sjov måde.
- Den hurtige løsning: Ophæng et pindegardin mellem to senge.
- Køjesenge er et hit hos mindre børn. Især hvis der er hule under sengene.
- En mobil skærm på hjul fx i flet eller stof kan bruges som rumdeler ved behov. Brug den også som sengegavl eller dekoration.
- Paller er en rå og billig rumdeler til teenageværelset.
















